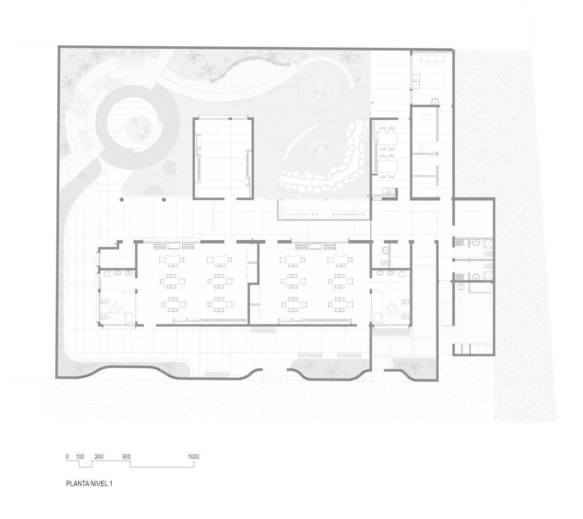
JARDÍN SIRENITA


Destino Educativo
Lugar:
Antofagasta, Región de Antofagasta
Fecha: 2025
Superficie edificio: 607 m2

Scroll al inicio