Ir al contenido
RAPAZ – MUT
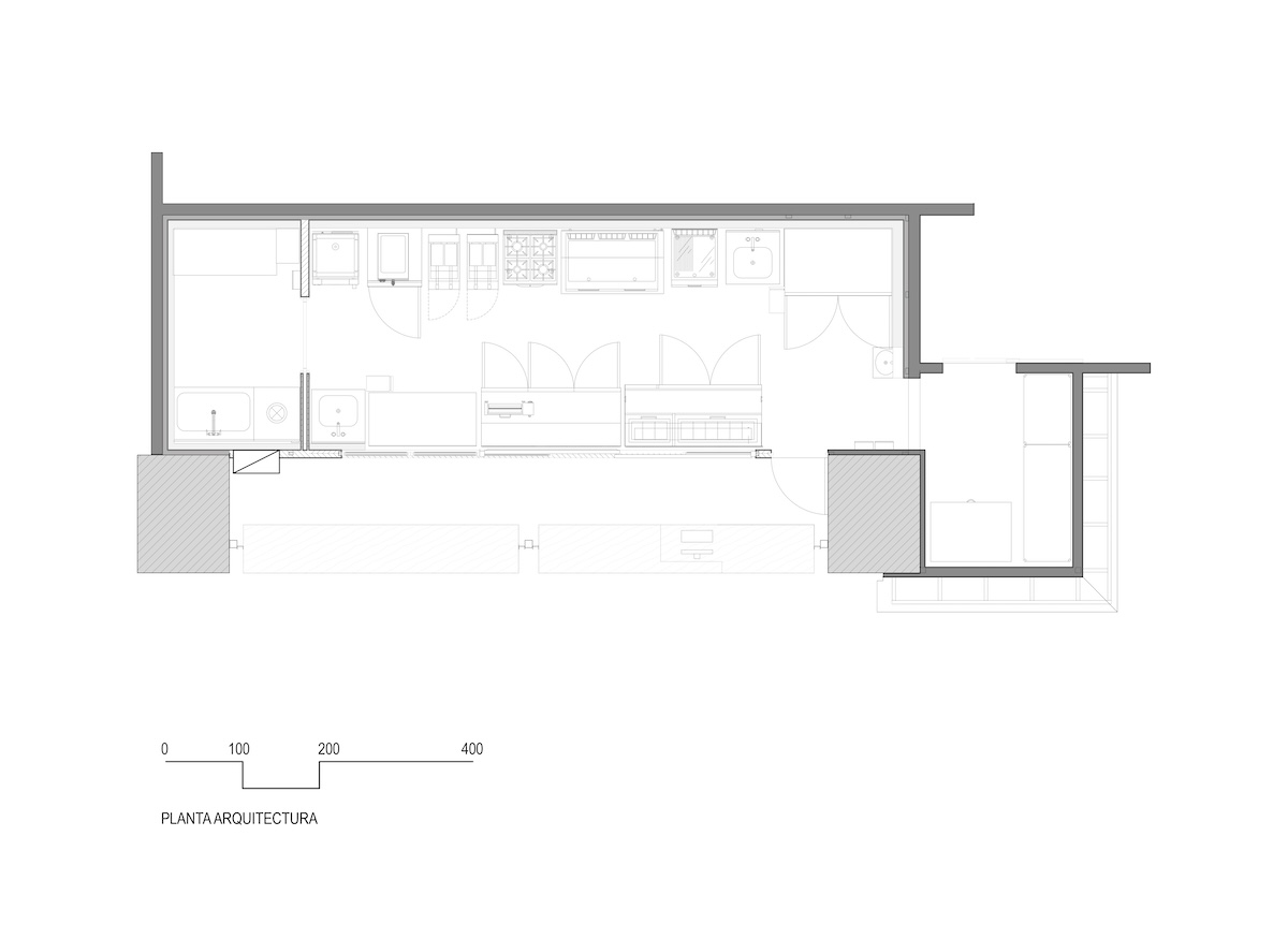
Destino Comercial
Lugar:
Providencia, Santiago
Fecha:
2023
Superficie:
56 m2
Scroll al inicio